Layout Park 7 - Vinhomes Central Park

Thông tin về tòa The Park 7 tại dự án Vinhomes Central Park, layout tòa nhà và layout từng căn hộ.

Layout Park 7

Layout Park 7

 

  • Số tầng: 47 tầng
  • Số lượng căn hộ/sàn: 19 căn hộ
  • Số lượng thang máy/toà: 16 (13 thang khách, 3 thang )
  • Số lượng thang thoát hiểm/toà: 2 thang thoát hiểm với cửa chống cháy
  • Hầm để xe thông minh với 3 tầng
  • Căn hộ hiện đại từ 1, 2, 3 phòng ngủ
  • Căn hộ nhà phố thương mại thông tầng (duplex shophouse)

Năm khởi công: 2015

Năm bàn giao: 2017

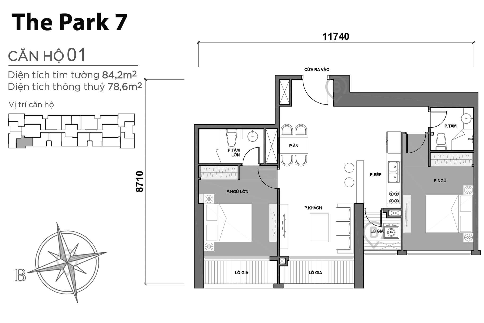
Thông tin Layout P7-01

Thông tin Layout P7-01

 

2PN, 2WC, 2 ban công

Diện tích tim tường: 84,2 m2

Diện tích thông thuỷ: 78,6 m2

Hướng cửa: Đông (lệch ít về Đông Nam)

Hướng ban công: Tây (lệch ít về Tây Bắc)

View: Nội khu, thành phố*

Thông tin Layout P7-02

Thông tin Layout P7-02

 

2PN, 2WC, 1 ban công

Diện tích tim tường: 90,4 m2

Diện tích thông thuỷ: 82,4 m2

Hướng cửa: Nam (lệch ít về Tây Nam)

Hướng ban công: Bắc (lệch ít về Đông Bắc)

View:  Nội khu, thành phố*

Thông tin Layout P7-03

Thông tin Layout P7-03

 

1PN, 1WC, 2 ban công

Diện tích tim tường: 54,3 m2

Diện tích thông thuỷ: 50 m2

Hướng cửa: Nam (lệch ít về Tây Nam)

Hướng ban công: Bắc (lệch ít về Đông Bắc)

View: Nội khu, thành phố*

Thông tin Layout P7-04

Thông tin Layout P7-04

 

2PN, 2WC, 1 ban công

Diện tích tim tường: 83,4 m2

Diện tích thông thuỷ: 77,4 m2

Hướng cửa: Tây (lệch ít về Tây Bắc)

Hướng ban công: Đông (lệch ít về Đông Nam)

View:  Nội khu, sông*, công viên*

Thông tin Layout P7-05

Thông tin Layout P7-05

 

3PN, 2WC, 2 ban công

Diện tích tim tường: 107,8 m2

Diện tích thông thuỷ: 100,4 m2

Hướng cửa: Tây (lệch ít về Tây Bắc)

Hướng ban công: Đông (lệch ít về Đông Nam)

View: Nội khu, sông*, công viên*

Thông tin Layout P7-06

Thông tin Layout P7-06

 

3PN, 2WC, 2 ban công

Diện tích tim tường: 116,4 m2

Diện tích thông thuỷ: 109,3 m2

Hướng cửa: Tây (lệch ít về Tây Bắc)

Hướng ban công: Đông (lệch ít về Đông Nam)

View: Nội khu, sông*, công viên*

Thông tin Layout P7-07

Thông tin Layout P7-07

 

1PN, 1WC, 2 ban công

Diện tích tim tường: 56,2 m2

Diện tích thông thuỷ: 51,3 m2

Hướng cửa: Tây (lệch ít về Tây Bắc)

Hướng ban công: Đông (lệch ít về Đông Nam)

View: Nội khu, sông*, công viên*

Thông tin Layout P7-08

Thông tin Layout P7-08

 

1PN, 1WC, 2 ban công

Diện tích tim tường: 56,2 m2

Diện tích thông thuỷ: 51,3 m2

Hướng cửa: Tây (lệch ít về Tây Bắc)

Hướng ban công: Đông (lệch ít về Đông Nam)

View: Nội khu, sông*, công viên*

Thông tin Layout P7-09

Thông tin Layout P7-09

 

3PN, 2WC, 2 ban công

Diện tích tim tường: 116,4 m2

Diện tích thông thuỷ: 109,3 m2

Hướng cửa: Tây (lệch ít về Tây Bắc)

Hướng ban công: Đông (lệch ít về Đông Nam)

View: Nội khu, sông*, công viên*

Thông tin Layout P7-10

Thông tin Layout P7-10

 

3PN, 2WC, 2 ban công

Diện tích tim tường: 107,8 m2

Diện tích thông thuỷ: 100,3 m2

Hướng cửa: Tây (lệch ít về Tây Bắc) 

Hướng ban công: Đông (lệch ít về Đông Nam)

View:  Nội khu, sông*, công viên*

Thông tin Layout P7-11

Thông tin Layout P7-11

 

2PN, 2WC, 1 ban công

Diện tích tim tường: 85,4 m2

Diện tích thông thuỷ: 80 m2

Hướng cửa: Tây (lệch ít về Tây Bắc)  

Hướng ban công: Đông (lệch ít về Đông Nam)

View: Nội khu, sông*, công viên*

Thông tin Layout P7-12

Thông tin Layout P7-12

 

2PN, 2WC, 1 ban công

Diện tích tim tường: 88,5 m2

Diện tích thông thuỷ: 80,1 m2

Hướng cửa: Bắc (lệch ít về Đông Bắc)

Hướng ban công: Nam (lệch ít về Tây Nam)

View: Nội khu, sông*

Thông tin Layout P7-13

Thông tin Layout P7-13

 

2PN, 2WC, 1 ban công

Diện tích tim tường: 86 m2

Diện tích thông thuỷ: 79,6 m2

Hướng cửa: Bắc (lệch ít về Đông Bắc)

Hướng ban công: Tây (lệch ít về Tây Nam)

View: Nội khu, thành phố*

Thông tin Layout P7-14

Thông tin Layout P7-14

 

2PN, 2WC, 1 ban công

Diện tích tim tường: 84,7 m2

Diện tích thông thuỷ: 78,8 m2

Hướng cửa: Đông (lệch ít về Đông Nam) 

Hướng ban công: Tây (lệch ít về Tây Bắc)

View: Nội khu, thành phố*

Thông tin Layout P7-15

Thông tin Layout P7-15

 

2PN, 2WC, 1 ban công

Diện tích tim tường: 82 m2

Diện tích thông thuỷ: 77,4 m2

Hướng cửa: Đông (lệch ít về Đông Nam) 

Hướng ban công: Tây (lệch ít về Tây Bắc)

View: Nội khu ,thành phố*

Thông tin Layout P7-16

Thông tin Layout P7-16

 

2PN, 2WC, 1 ban công

Diện tích tim tường: 80,6 m2

Diện tích thông thuỷ: 76,1 m2

Hướng cửa: Đông (lệch ít về Đông Nam)

Hướng ban công: Tây (lệch ít về Tây Bắc)

View: Nội khu, thành phố*

Thông tin Layout P7-17

Thông tin Layout P7-17

 

2PN, 2WC, 1 ban công

Diện tích tim tường: 83 m2

Diện tích thông thuỷ: 76,3 m2

Hướng cửa: Đông (lệch ít về Đông Nam)

Hướng ban công: Tây (lệch ít về Tây Bắc)

View: Nội khu, thành phố*

Thông tin Layout P7-18

Thông tin Layout P7-18

 

2PN, 2WC, 1 ban công

Diện tích tim tường: 84,5 m2

Diện tích thông thuỷ: 79,9 m2

Hướng cửa: Đông (lệch ít về Đông Nam)

Hướng ban công: Tây (lệch ít về Tây Bắc)

View: Nội khu, thành phố

Thông tin Layout P7-19

Thông tin Layout P7-19

 

2PN, 2WC, 1 ban công

Diện tích tim tường: 90,3 m2

Diện tích thông thuỷ: 83,7 m2

Hướng cửa: Đông (lệch ít về Đông Nam)

Hướng ban công: Tây (lệch ít về Tây Bắc)

View: Nội khu, thành phố*

0909638631