Layout Park 6 tại khu đô thị Vinhomes Central Park - Mặt bằng Park 6

Bạn đang tìm hiểu về toà The Park 6? Bạn muốn xem hình ảnh layout Park 6 (mặt bằng Park 6)? Bạn muốn xem thêm layout một căn hộ cụ thể mà bạn đang tìm hiểu? Ở trang này chúng tôi sẽ cung cấp đầy đủ thông tin bạn đang tìm.

Thông tin Layout P6A-07

Thông tin Layout P6A-07

 

4PN, 3WC, 2 ban công

Diện tích tim tường: 154,5 m2

Diện tích thông thuỷ: 147,3 m2

Hướng cửa: Tây (lệch ít về Tây Nam)

Hướng ban công phòng khách: Bắc (lệch ít về Tây Bắc)

View: Nội khu, sông*, công viên*

Thông tin Layout P6A-08

Thông tin Layout P6A-08

 

3PN, 3WC, 1 ban công 

Diện tích tim tường: 114,4 m2

Diện tích thông thuỷ: 107,1 m2

Hướng cửa: Đông (lệch ít về Đông Bắc) 

Hướng ban công: Bắc (lệch ít về Tây Bắc)

View: Nội khu, sông*, công viên*

Thông tin Layout P6A-08A và P6A-08B

Thông tin Layout P6A-08A và P6A-08B

 

P6A-08A: Studio

P6A-08B: 2PN 2WC

Thông tin Layout P6A-09

Thông tin Layout P6A-09

 

2PN, 2WC, 1 ban công

Diện tích tim tường: 82,4 m2

Diện tích thông thuỷ: 77,1 m2

Hướng cửa: Đông (lệch ít về Đông Bắc) 

Hướng ban công: Tây (lệch ít về Tây Nam)

View: Thành phố*

Thông tin Layout P6B-01

Thông tin Layout P6B-01

Thông tin Layout P6B-01

2PN, 2WC, 1 ban công

Diện tích tim tường: 80,7 m2

Diện tích thông thuỷ: 75,5 m2

Hướng cửa: Đông (lệch ít về Đông Bắc) 

Hướng ban công: Tây (lệch ít về Tây Nam)

View: Thành phố*

Thông tin Layout P6B-02

Thông tin Layout P6B-02

Thông tin Layout P6B-02

1PN, 1WC, 1 ban công

Diện tích tim tường: 52,7 m2

Diện tích thông thuỷ: 49,3 m2

Hướng cửa: Đông (lệch ít về Đông Bắc) 

Hướng ban công: Tây (lệch ít về Tây Nam)

View: Thành phố*

Thông tin Layout P6B-03

Thông tin Layout P6B-03

 

2PN, 2WC, 1 ban công

Diện tích tim tường: 76 m2

Diện tích thông thuỷ: 69,7 m2

Hướng cửa: Đông (lệch ít về Đông Bắc)

Hướng ban công: Tây (lệch ít về Tây Nam)

View: Thành phố*

Thông tin Layout P6B-04

Thông tin Layout P6B-04

 

3PN, 2WC, 1 ban công

Diện tích tim tường: 123,7 m2

Diện tích thông thuỷ: 116,3 m2

Hướng cửa: Tây (lệch ít về Tây Nam)  

Hướng ban công: Đông (lệch ít về Đông Bắc)

View:  Nội khu, sông*, công viên*

Thông tin Layout P6B-05

Thông tin Layout P6B-05

 

2PN, 2WC, 1 ban công

Diện tích tim tường: 78,2 m2

Diện tích thông thuỷ: 73,1 m2

Hướng cửa: Tây (lệch ít về Tây Nam)

Hướng ban công: Đông (lệch ít về Đông Bắc)

View: Nội khu, sông*, công viên*

Thông tin Layout P6B-06

Thông tin Layout P6B-06

 

2PN, 2WC, 1 ban công

Diện tích tim tường: 84,4 m2

Diện tích thông thuỷ: 79,2 m2

Hướng cửa: Tây (lệch ít về Tây Nam)

Hướng ban công: Đông (lệch ít về Đông Bắc)

View: Nội khu, sông*, công viên*

Thông tin Layout P6B-07

Thông tin Layout P6B-07

 

4PN, 3WC, 1 ban công

Diện tích tim tường: 139,3 m2

Diện tích thông thuỷ: 131,9 m2

Hướng cửa: Tây (lệch ít về Tây Nam)

Hướng ban công: Nam (lệch ít về Đông Nam)

View: Nội khu, sông*, công viên*

Thông tin Layout P6B-08

Thông tin Layout P6B-08

 

3PN, 3WC, 1 ban công

Diện tích tim tường: 114,4 m2

Diện tích thông thuỷ: 107,5 m2

Hướng cửa: Đông (lệch ít về Đông Bắc)

Hướng ban công: Nam (lệch ít về Đông Nam)

View: Thàh phố

Thông tin Layout P6B-08A và P6B-08B

Thông tin Layout P6B-08A và P6B-08B

 

Căn hộ P6B-08A: Studio

Căn hộ P6B-08B: 2PN 2WC

Thông tin Layout P6B-09

Thông tin Layout P6B-09

 

2PN, 2WC, 1 ban công

Diện tích tim tường: 74,4 m2

Diện tích thông thuỷ: 69,2 m2

Hướng cửa: Đông (lệch ít về Đông Bắc)

Hướng ban công: Tây (lệch ít về Tây Nam)

View: Thành phố

Thông tin Layout P6A-02

Thông tin Layout P6A-02

 

1PN, 1WC, 1 ban công

Diện tích tim tường: 52,7 m2

Diện tích thông thuỷ: 49,2 m2

Hướng cửa: Đông (lệch ít về Đông Bắc)

Hướng ban công: Tây (lệch ít về Tây Nam)

View: Thành phố*

Layout Park 6

Layout Park 6

Layout Park 6

  • Số tầng: 50 tầng
  • Số lượng căn hộ/sàn: 18 căn hộ
  • Số lượng thang máy/toà: 14 
  • Số lượng thang thoát hiểm/toà: 4 thang thoát hiểm với cửa chống cháy
  • Hầm để xe thông minh với 3 tầng
  • Căn hộ hiện đại từ 1, 2, 3, 4 phòng ngủ
  • Căn hộ nhà phố thương mại thông tầng (duplex shophouse)
  • Biệt thự trên không penthouse

Năm khởi công: 2015

Năm bàn giao: 2017

Thông tin Layout P6A-01

Thông tin Layout P6A-01

Thông tin Layout P6A-01

2PN, 2WC, 1 ban công

Diện tích tim tường: 72,5 m2

Diện tích thông thuỷ: 67,5 m2

Hướng cửa: Đông (lệch ít về Đông Bắc)

Hướng ban công: Tây (lệch ít về Tây Nam)

View: Thành phố*

Thông tin Layout P6A-03

Thông tin Layout P6A-03

Thông tin Layout P6A-03

2PN, 2WC, 1 ban công

Diện tích tim tường: 76,5 m2

Diện tích thông thuỷ: 69,7 m2

Hướng cửa: Đông (lệch ít về Đông Bắc)

Hướng ban công: Tây (lệch ít về Tây Nam)

View: Thành phố*

Thông tin Layout P6A-04

Thông tin Layout P6A-04

 

3PN, 2WC, 1 ban công

Diện tích tim tường: 123,7 m2

Diện tích thông thuỷ: 116,2 m2

Hướng cửa: Tây (lệch ít về Tây Nam)

Hướng ban công: Đông (lệch ít về Đông Bắc)

View: Nội khu, sông*, công viên*

Thông tin Layout P6A-05

Thông tin Layout P6A-05

 

2PN, 2WC, 1 ban công

Diện tích tim tường: 85,7 m2

Diện tích thông thuỷ: 79,9 m2

Hướng cửa: Tây (lệch ít về Tây Nam)

Hướng ban công: Đông (lệch ít về Đông Bắc)

View: Nội khu, sông*, công viên*

Thông tin Layout P6B-23.09

Thông tin Layout P6B-23.09

 

1PN, 1WC, 1 ban công

Diện tích tim tường: 55,7 m2

Diện tích thông thuỷ: 52,6 m2

Hướng cửa: Đông (lệch ít về Đông Bắc)

Hướng ban công: Tây (lệch ít về Tây Nam)

View: Thành phố

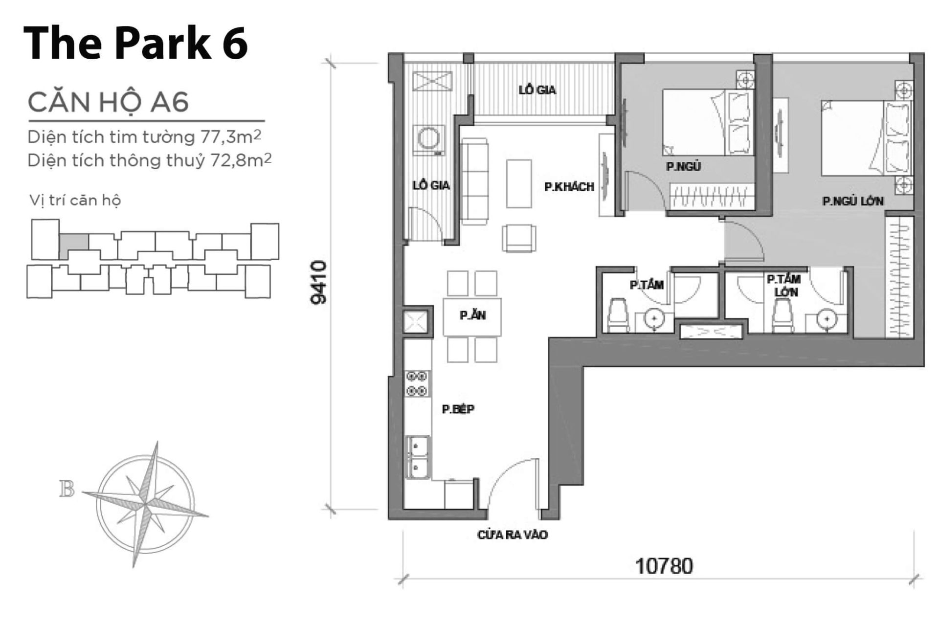
Thông tin Layout P6A-06

Thông tin Layout P6A-06

 

2PN, 2WC, 1 ban công

Diện tích tim tường: 77,3 m2

Diện tích thông thuỷ: 72,8 m2

Hướng cửa: Tây (lệch ít về Tây Nam)

Hướng ban công: Đông (lệch ít về Đông Bắc)

View: Nội khu, sông*, công viên*

Layout Park 6 tầng 23

Layout Park 6 tầng 23

 

Bố trí thêm không gian kĩ thuật và căn hộ B9 có thay đổi diện tích

0909638631