Mục lục [Ẩn]

Layout Park 4 - Vinhomes Central Park

Thông tin về tòa The Park 4 tại dự án Vinhomes Central Park, layout tòa nhà và layout từng căn hộ.

Thông tin Layout P4-01

Thông tin Layout P4-01

 

2PN, 2WC, 1 ban công

Diện tích tim tường: 87,2 m2

Diện tích thông thuỷ: 80 m2

Hướng cửa: Đông

Hướng ban công: Tây

View: Nội khu, sông*, công viên*

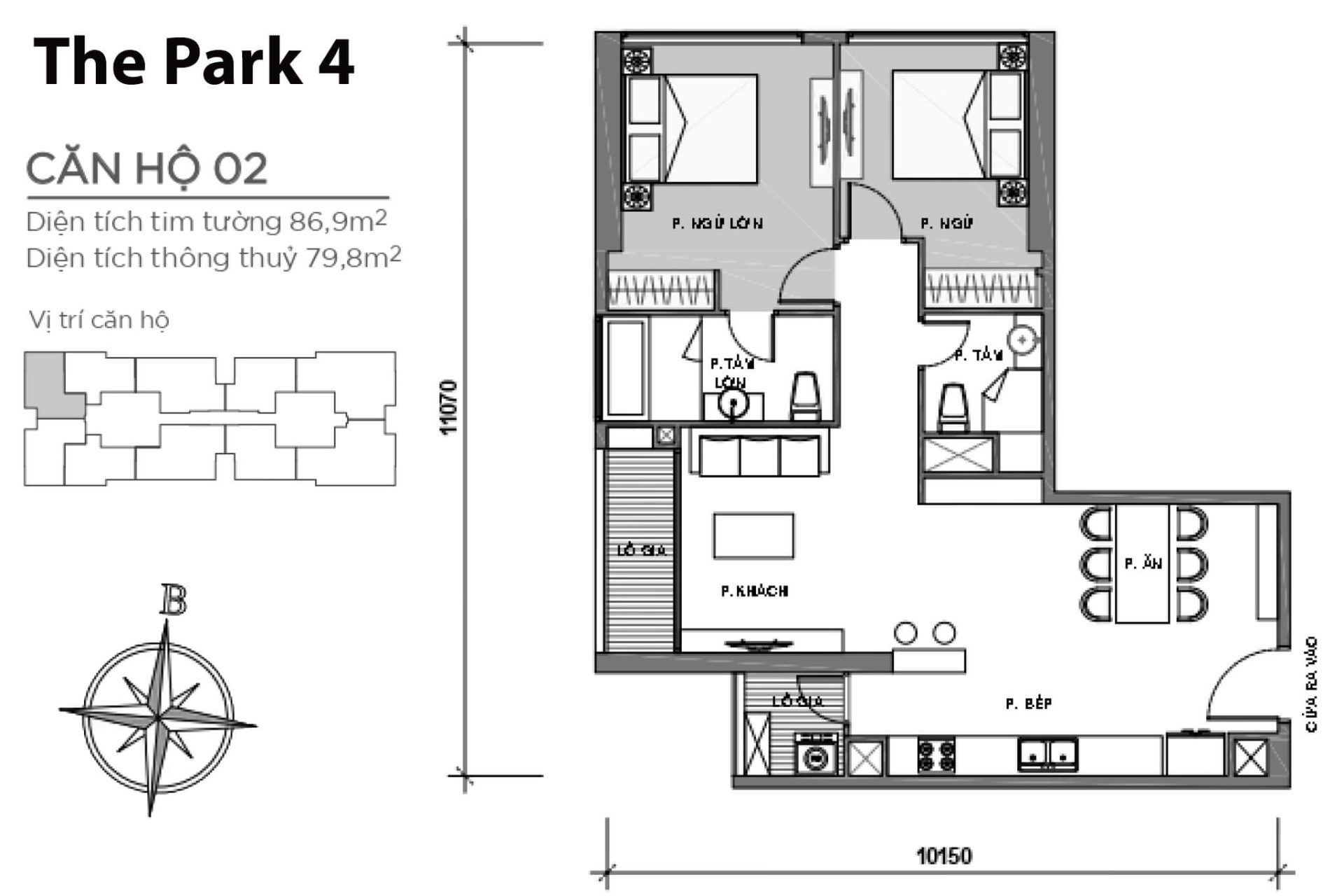
Thông tin Layout P4-02

Thông tin Layout P4-02

 

2PN, 2WC, 1 ban công

Diện tích tim tường: 86,9 m2

Diện tích thông thuỷ: 79,8 m2

Hướng cửa: Đông

Hướng ban công: Tây

View: Nội khu, sông*, công viên*

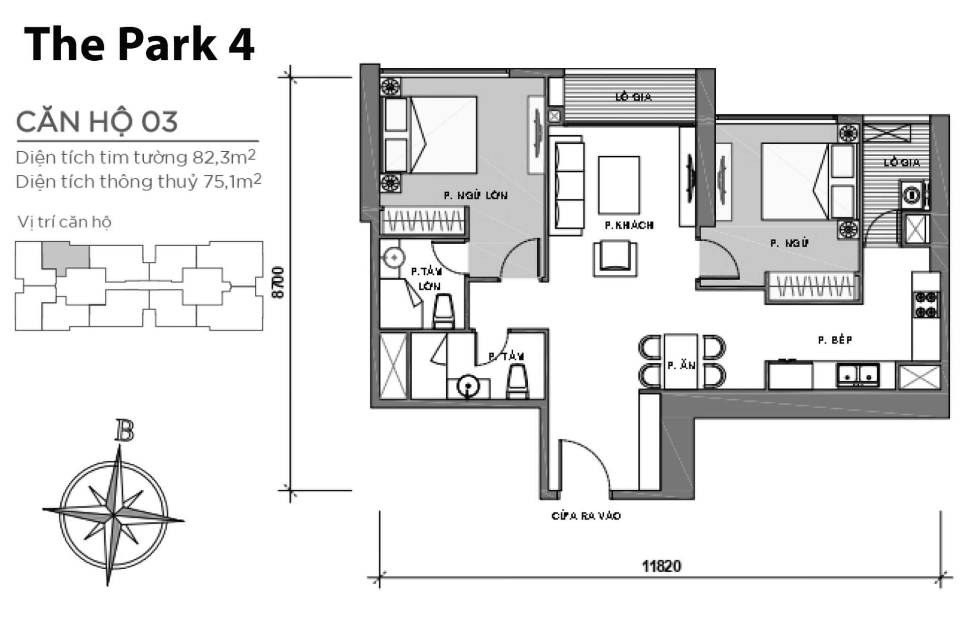
Thông tin Layout P4-03

Thông tin Layout P4-03

 

2PN, 2WC, 1 ban công

Diện tích tim tường: 82,3 m2

Diện tích thông thuỷ: 75,1 m2

Hướng cửa: Nam

Hướng ban công: Bắc

View: Sông, công viên

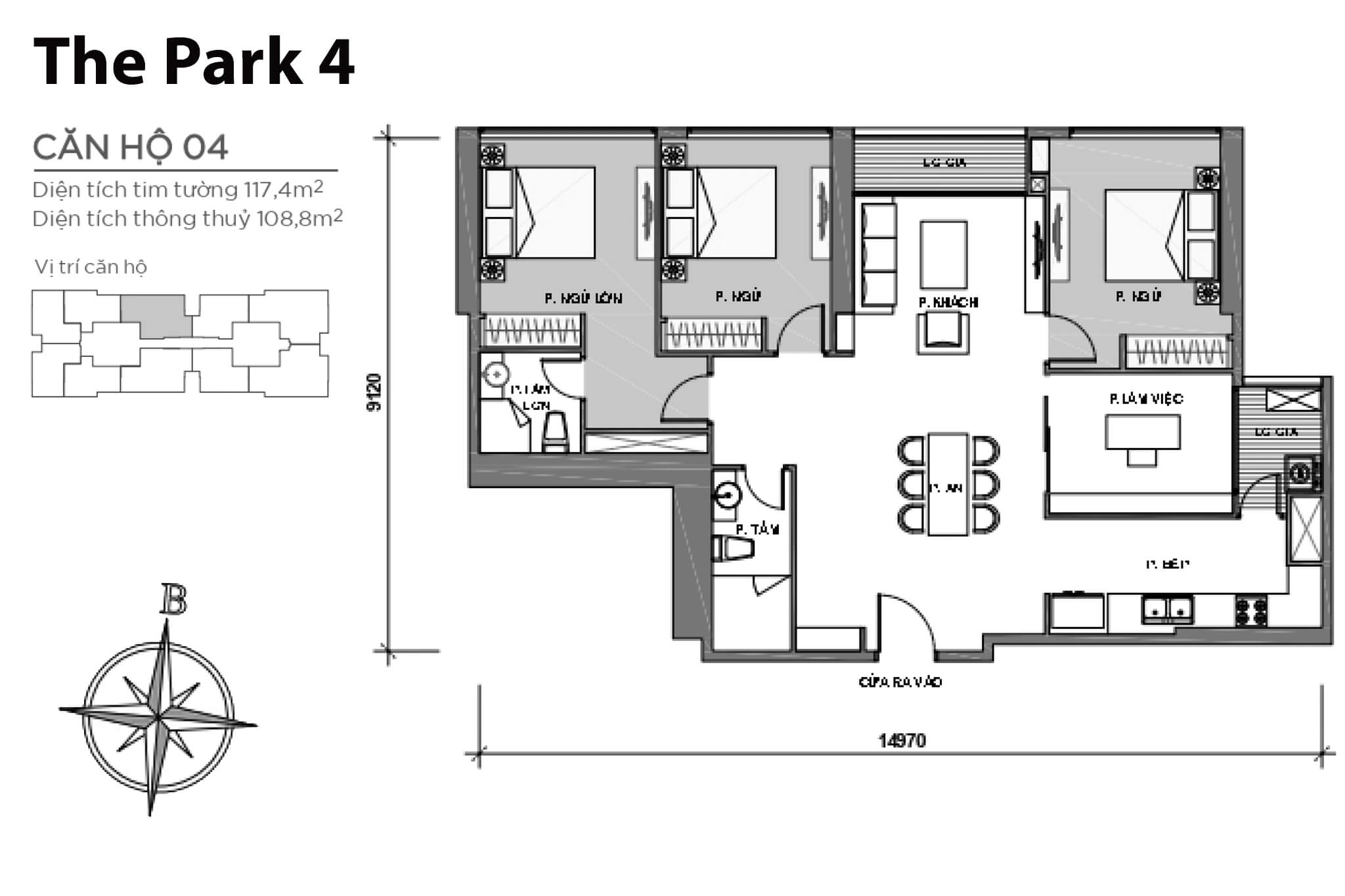
Thông tin Layout P4-04

Thông tin Layout P4-04

 

4PN, 2WC, 1 ban công

Diện tích tim tường: 117,4 m2

Diện tích thông thuỷ: 108,8 m2

Hướng cửa: Nam

Hướng ban công: Bắc

View: Sông, công viên

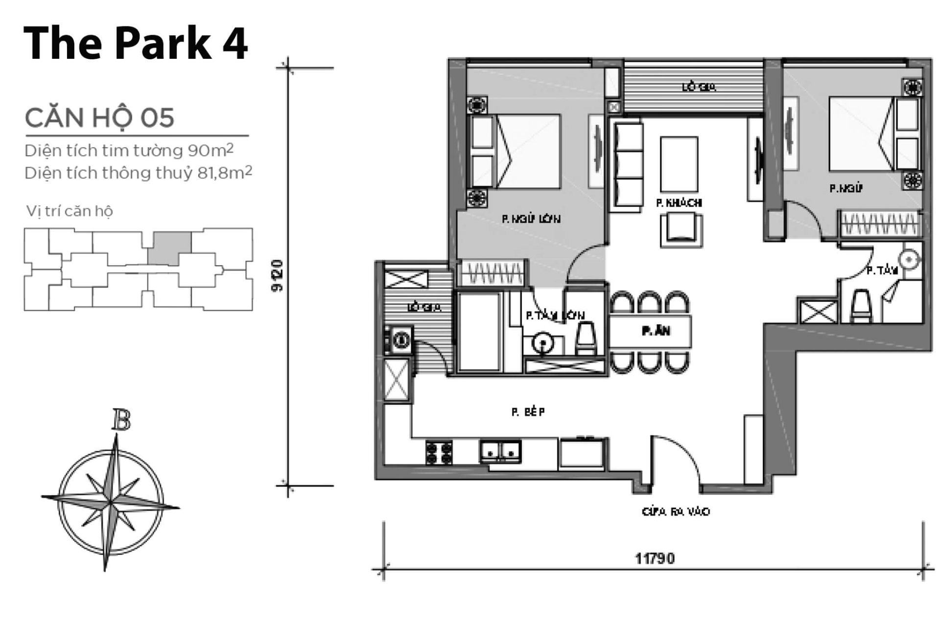
Thông tin Layout P4-05

Thông tin Layout P4-05

 

2PN, 2WC, 1 ban công

Diện tích tim tường: 90 m2

Diện tích thông thuỷ: 81,8 m2

Hướng cửa: Nam

Hướng ban công: Bắc

View: Sông, công viên

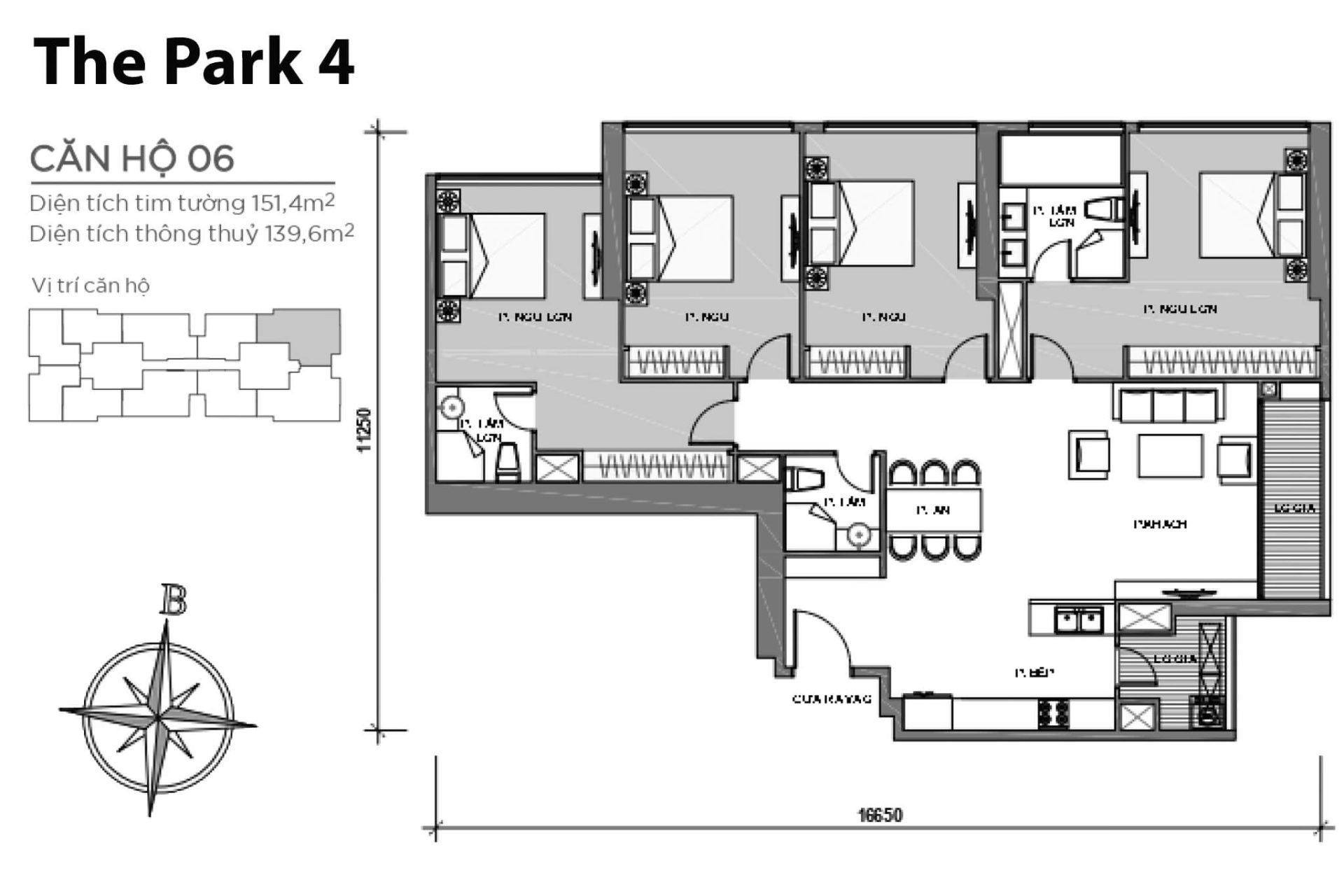
Thông tin Layout P4-06

Thông tin Layout P4-06

 

4PN, 3WC, 1 ban công

Diện tích tim tường: 151,4 m2

Diện tích thông thuỷ: 139,6 m2

Hướng cửa: Nam

Hướng ban công: Đông

View:  Sông, công viên

Thông tin Layout P4-07

Thông tin Layout P4-07

 

4PN, 3WC, 1 ban công

Diện tích tim tường: 146 m2

Diện tích thông thuỷ: 134,3 m2

Hướng cửa: Bắc

Hướng ban công: Đông

View: Sông, công viên

Thông tin Layout P4-08

Thông tin Layout P4-08

 

2PN, 2WC, 1 ban công

Diện tích tim tường: 90,7 m2

Diện tích thông thuỷ: 82,7 m2

Hướng cửa: Bắc

Hướng ban công: Nam

View:  Sông, công viên

Thông tin Layout P4-09

Thông tin Layout P4-09

 

4PN, 2WC, 1 ban công

Diện tích tim tường: 118,2 m2

Diện tích thông thuỷ: 109,4 m2

Hướng cửa: Bắc

Hướng ban công: Nam

View:  Sông, công viên

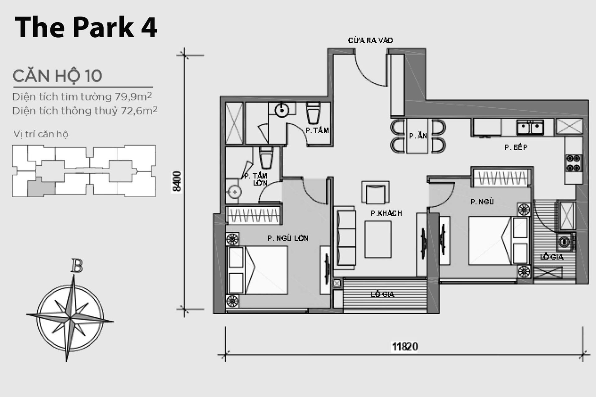
Thông tin Layout P4-10

Thông tin Layout P4-10

 

2PN, 2WC, 1 ban công

Diện tích tim tường: 79,9 m2

Diện tích thông thuỷ: 72,6 m2

Hướng cửa: Bắc

Hướng ban công: Nam

View: Sông, công viên

Layout Park 4

Layout Park 4

 

  • Số tầng: 43 tầng
  • Số lượng căn hộ/sàn: 10 căn hộ
  • Số lượng thang máy/toà: 8 thang máy 
  • Số lượng thang thoát hiểm/toà: 2 thang thoát hiểm với cửa chống cháy
  • Hầm để xe thông minh với 3 tầng
  • Căn hộ hiện đại từ 2, 3, 4 phòng ngủ
  • Căn hộ nhà phố thương mại thông tầng (duplex shophouse)
  • Biệt thự trên không (Penthouse)

Năm khởi công: 2015

Năm hoàn thành: 2017

0909638631