Layout Park 3 tại khu đô thị Vinhomes Central Park - Mặt bằng Park 3

Bạn đang tìm hiểu về toà The Park 3? Bạn muốn xem hình ảnh layout Park 3 (mặt bằng Park 3)? Bạn muốn xem thêm layout một căn hộ cụ thể mà bạn đang tìm hiểu?  Ở trang này chúng tôi sẽ cung cấp đầy đủ thông tin bạn đang tìm.

Layout Park 3

Layout Park 3

 

  • Số tầng: 43 tầng
  • Số lượng căn hộ/sàn: 13 căn hộ
  • Số lượng thang máy/toà: 10 thang máy 
  • Số lượng thang thoát hiểm/toà: 3 thang thoát hiểm với cửa chống cháy
  • Hầm để xe thông minh với 3 tầng
  • Căn hộ hiện đại từ 2, 3, 4 phòng ngủ
  • Căn hộ nhà phố thương mại thông tầng (duplex shophouse)

Năm khởi công: 2015

Năm hoàn thành: 2017

Thông tin Layout P3-01

Thông tin Layout P3-01

 

3PN, 2WC, 1 ban công

Diện tích tim tường: 118,1 m2

Diện tích thông thuỷ: 110,9 m2

Hướng cửa: Bắc

Hướng ban công: Nam

View: Sông, công viên

Thông tin Layout P3-02

Thông tin Layout P3-02

 

2PN, 2WC, 1 ban công

Diện tích tim tường: 89,1 m2

Diện tích thông thuỷ: 79,8 m2

Hướng cửa: Đông

Hướng ban công: Tây

View: Nội khu

Thông tin Layout P3-03

Thông tin Layout P3-03

 

2PN, 2WC, 1 ban công

Diện tích tim tường: 87,2 m2

Diện tích thông thuỷ: 80,4 m2

Hướng cửa: Nam

Hướng ban công: Bắc

View: Sông, công viên

Thông tin Layout P3-04

Thông tin Layout P3-04

 

3PN, 2WC, 2 ban công

Diện tích tim tường: 115 m2

Diện tích thông thuỷ: 105,3 m2

Hướng cửa: Nam

Hướng ban công: Bắc

View: Sông, công viên

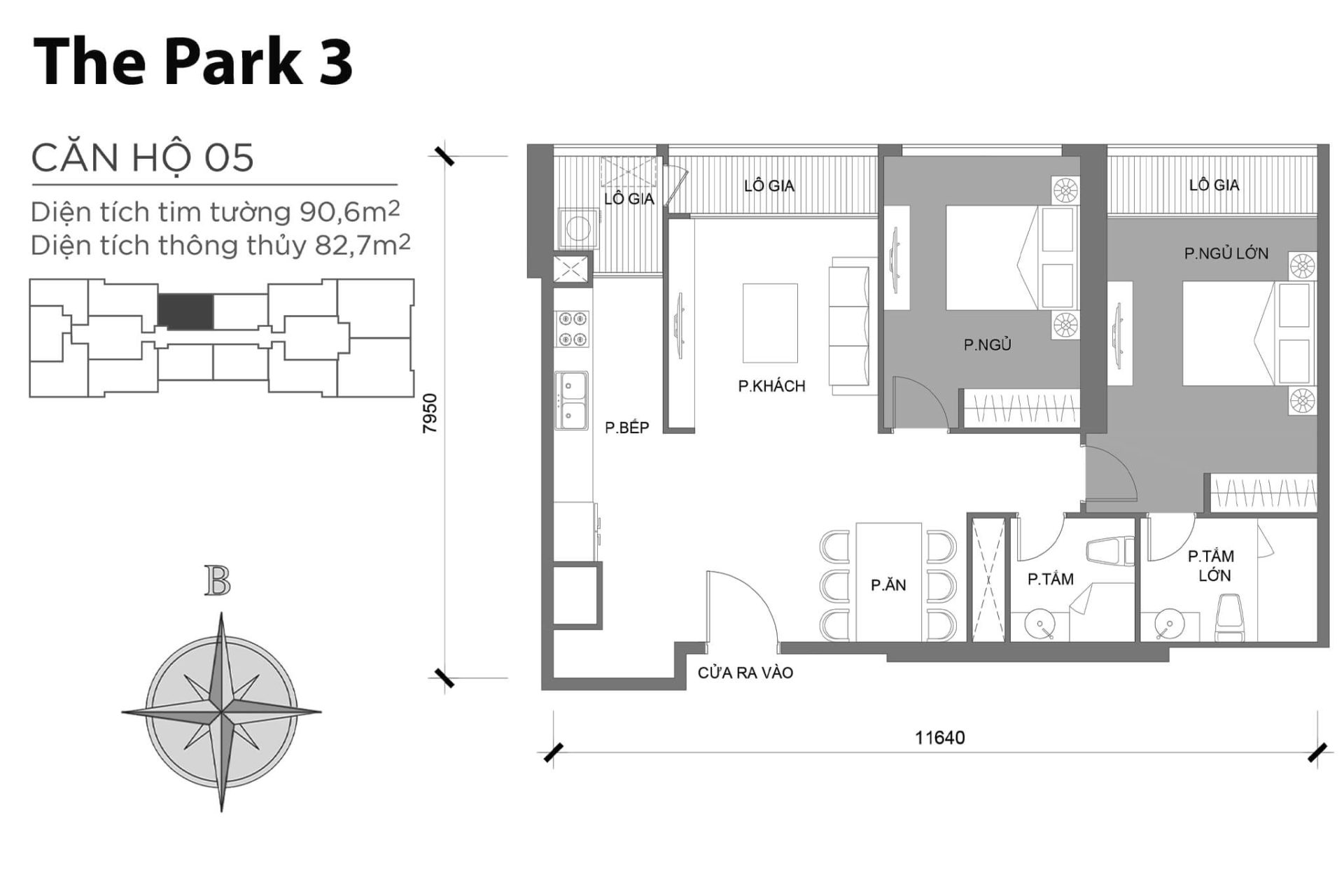
Thông tin Layout P3-05

Thông tin Layout P3-05

 

2PN, 2WC, 2 ban công

Diện tích tim tường: 90,6 m2

Diện tích thông thuỷ: 82,7 m2

Hướng cửa: Nam

Hướng ban công: Bắc

View: Sông, công viên

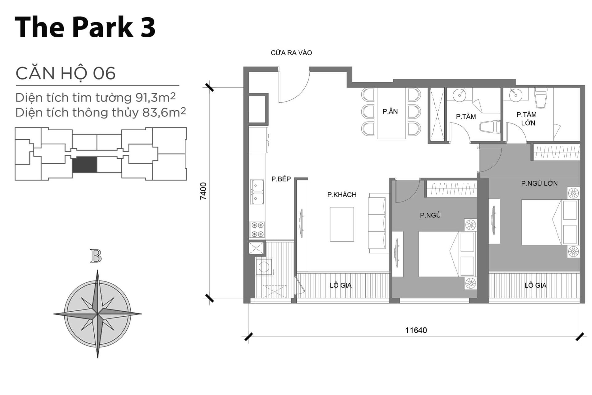
Thông tin Layout P3-06

Thông tin Layout P3-06

 

2PN, 2WC, 2 ban công

Diện tích tim tường: 91,3 m2

Diện tích thông thuỷ: 83,6 m2

Hướng cửa: Bắc

Hướng ban công: Nam

View: Sông, công viên

Thông tin Layout P3-07

Thông tin Layout P3-07

 

3PN, 2WC, 2 ban công

Diện tích tim tường: 116,2 m2

Diện tích thông thuỷ: 106,3 m2

Hướng cửa: Bắc

Hướng ban công: Nam

View: Sông, công viên

Thông tin Layout P3-08

Thông tin Layout P3-08

 

2PN, 2WC, 2 ban công

Diện tích tim tường: 90,6 m2

Diện tích thông thuỷ: 82,7 m2

Hướng cửa: Nam

Hướng ban công: Bắc

View: Sông, công viên

Thông tin Layout P3-09

Thông tin Layout P3-09

 

3PN, 2WC, 2 ban công

Diện tích tim tường: 115,3 m2

Diện tích thông thuỷ: 105,5 m2

Hướng cửa: Nam

Hướng ban công: Bắc

View: Sông, công viên

Thông tin Layout P3-10

Thông tin Layout P3-10

 

4PN, 3WC, 3 ban công

Diện tích tim tường: 187,7 m2

Diện tích thông thuỷ: 174,1 m2

Hướng cửa: Tây

Hướng ban công: Đông

View: Sông, công viên

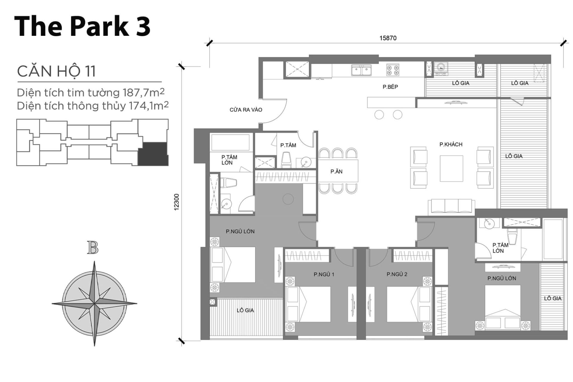
Thông tin Layout P3-11

Thông tin Layout P3-11

 

4PN, 3WC, 3 ban công

Diện tích tim tường: 187,7 m2

Diện tích thông thuỷ: 174,1 m2

Hướng cửa: Tây

Hướng ban công: Đông

View: Sông, công viên

Thông tin Layout P3-12

Thông tin Layout P3-12

 

3PN, 2WC, 2 ban công

Diện tích tim tường: 116,5 m2

Diện tích thông thuỷ: 106,6 m2

Hướng cửa: Bắc

Hướng ban công: Nam

View: Sông, công viên

Thông tin Layout P3-12A

Thông tin Layout P3-12A

 

2PN, 2WC, 2 ban công

Diện tích tim tường: 91,3 m2

Diện tích thông thuỷ: 83,6 m2

Hướng cửa: Bắc

Hướng ban công: Nam

View:  Sông, công viên

0909638631