Layout Park 1 - Vinhomes Central Park

Thông tin về tòa The Park 1 tại dự án Vinhomes Central Park, layout tòa nhà và layout từng căn hộ.

Layout Park 1

Layout Park 1

 

  • Số tầng: 38 tầng
  • Số lượng căn hộ/sàn: 16 căn hộ
  • Số lượng thang máy/toà: 12 thang máy
  • Số lượng thang thoát hiểm/toà: 4 thang thoát hiểm với cửa chống cháy
  • Hầm để xe thông minh với 3 tầng
  • Căn hộ hiện đại từ 1, 2, 3, 4 phòng ngủ
  • Căn hộ nhà phố thương mại thông tầng (Duplex Shophouse)
  • Biệt thự trên không (Penthouse)

Thời gian bàn giao: năm 2016

Thông tin Layout P1-01

Thông tin Layout P1-01

 

3PN, 2WC, 2 ban công

Diện tích tim tường: 111,2 m2

Diện tích thông thuỷ: 103,9 m2

Hướng cửa: Đông Nam

Hướng ban công phòng khách: Tây Bắc

View: Nội khu, sông*, công viên*

Thông tin Layout P1-02

Thông tin Layout P1-02

 

3PN, 2WC, 2 ban công

Diện tích tim tường: 111,2 m2

Diện tích thông thuỷ: 103,9 m2

Hướng cửa: Đông Nam

Hướng ban công phòng khách: Tây Bắc

View: Nội khu, sông*, công viên*

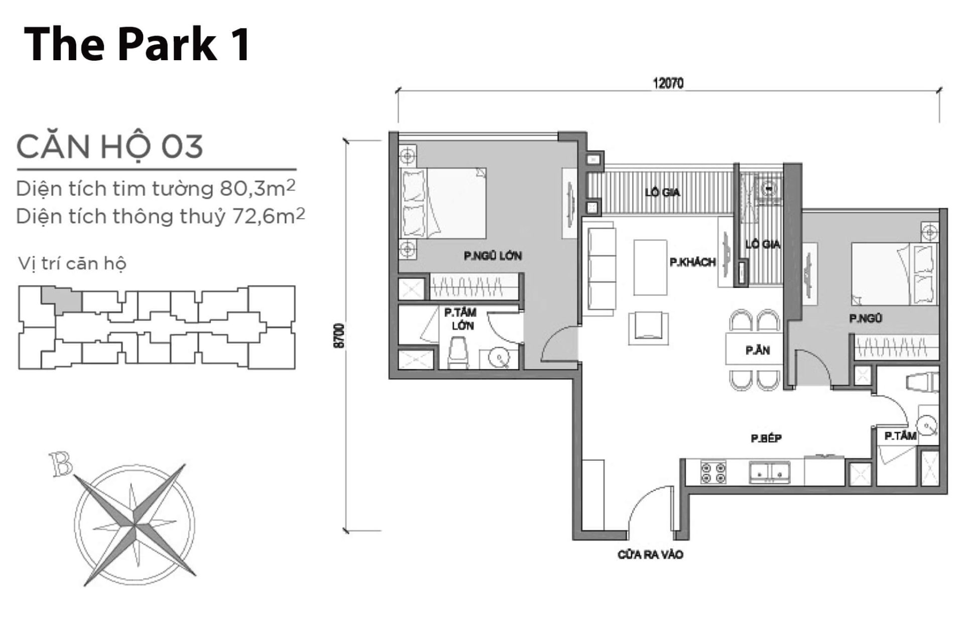
Thông tin Layout P1-03

Thông tin Layout P1-03

 

2PN, 2WC, 1 ban công

Diện tích tim tường: 80,3 m2

Diện tích thông thuỷ: 72,6 m2

Hướng cửa: Tây Nam 

Hướng ban công: Đông Bắc

View:  Sông*, công viên*

Thông tin Layout P1-04

Thông tin Layout P1-04

 

2PN, 2WC, 1 ban công

Diện tích tim tường: 72,2 m2

Diện tích thông thuỷ: 65,4 m2

Hướng cửa: Tây Nam

Hướng ban công: Đông Bắc

View: Sông*, công viên*

Thông tin Layout P1-05

Thông tin Layout P1-05

 

1PN, 1WC, 1 ban công

Diện tích tim tường: 51,2 m2

Diện tích thông thuỷ: 46,2 m2

Hướng cửa: Tây Bắc

Hướng ban công: Đông Bắc

View: Sông*, công viên*

Thông tin Layout P1-06

Thông tin Layout P1-06

 

1PN, 1WC, 1 ban công

Diện tích tim tường: 51,2 m2

Diện tích thông thuỷ: 46,2 m2

Hướng cửa: Tây Bắc

Hướng ban công: Tây Nam

View:  Sông*, công viên*

Thông tin Layout P1-07

Thông tin Layout P1-07

 

2PN, 2WC, 1 ban công

Diện tích tim tường: 72,2 m2

Diện tích thông thuỷ: 65,4 m2

Hướng cửa: Đông Bắc

Hướng ban công: Tây Nam

View: Sông*, công viên*

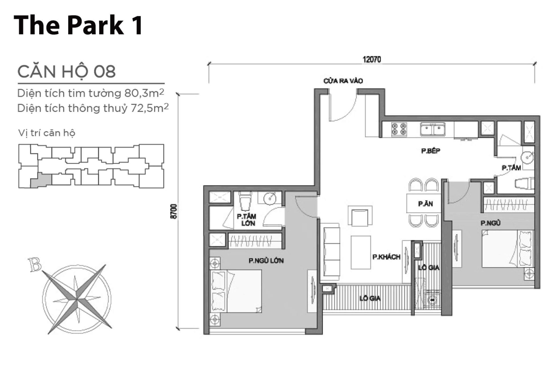
Thông tin Layout P1-08

Thông tin Layout P1-08

 

2PN, 2WC, 1 ban công

Diện tích tim tường: 80,3 m2

Diện tích thông thuỷ: 72,5 m2

Hướng cửa: Đông Bắc 

Hướng ban công: Tây Nam

View: Sông*, công viên*

Thông tin Layout P1-09

Thông tin Layout P1-09

 

2PN, 2WC, 1 ban công

Diện tích tim tường: 70,6 m2

Diện tích thông thuỷ: 63 m2

Hướng cửa: Tây Nam 

Hướng ban công: Đông Bắc

View: Sông*, công viên*

Thông tin Layout P1-10

Thông tin Layout P1-10

 

2PN, 2WC, 1 ban công

Diện tích tim tường: 68,5 m2

Diện tích thông thuỷ: 62,4 m2

Hướng cửa: Tây Bắc 

Hướng ban công: Đông Bắc

View: Sông*, công viên*

Thông tin Layout P1-11

Thông tin Layout P1-11

 

2PN, 2WC, 1 ban công

Diện tích tim tường: 71,1 m2

Diện tích thông thuỷ: 65,7 m2

Hướng cửa: Đông Bắc 

Hướng ban công: Tây Nam

View: Sông*, công viên*

Thông tin Layout P1-12

Thông tin Layout P1-12

 

2PN, 2WC, 1 ban công

Diện tích tim tường: 70,5 m2

Diện tích thông thuỷ: 63,7 m2

Hướng cửa: Đông Bắc  

Hướng ban công: Tây Nam

View: Sông*, công viên*

Thông tin Layout P1-12A

Thông tin Layout P1-12A

 

3PN, 2WC, 1 ban công

Diện tích tim tường: 115,9 m2

Diện tích thông thuỷ: 108 m2

Hướng cửa: Tây Nam  

Hướng ban công: Đông Bắc

View: Sông*, công viên*

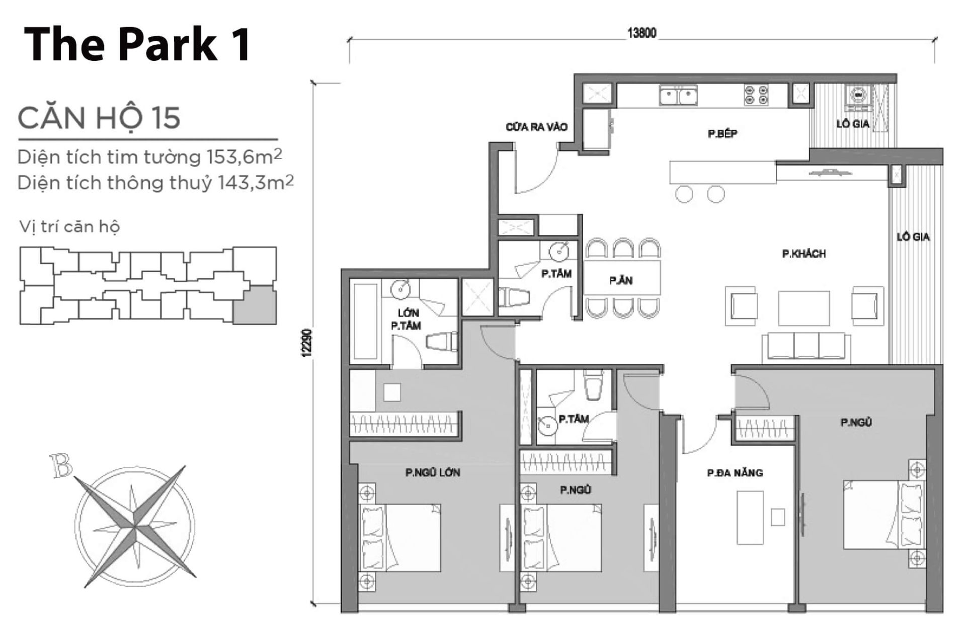
Thông tin Layout P1-12B

Thông tin Layout P1-12B

 

4PN, 3WC,  1 ban công

Diện tích tim tường: 153,6 m2

Diện tích thông thuỷ: 143,3 m2

Hướng cửa: Tây Nam

Hướng ban công: Đông Nam

View: Sông, công viên

Thông tin Layout P1-15

Thông tin Layout P1-15

 

4PN, 3WC, 1 ban công

Diện tích tim tường: 153,6 m2

Diện tích thông thuỷ: 143,3 m2

Hướng cửa: Đông Bắc 

Hướng ban công: Đông Nam

View: Sông*, công viên*

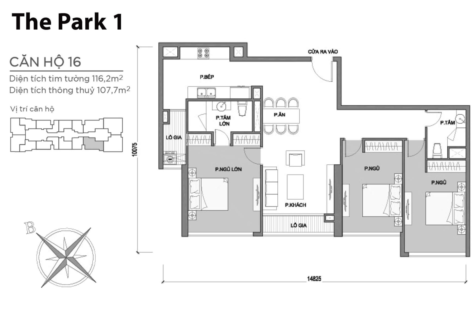
Thông tin Layout P1-16

Thông tin Layout P1-16

 

3PN, 2WC, 1 ban công

Diện tích tim tường: 116,2 m2

Diện tích thông thuỷ: 107,7 m2

Hướng cửa: Đông Bắc

Hướng ban công: Tây Nam

View: Sông*, công viên*

0909638631